U型玻璃又常稱為槽形玻璃,它是一種斷面為U型的玻璃,原產于德國,在歐美已有40多年的生產應用歷史。歷史最為悠久、規模最大的U型玻璃生產商是英國的皮爾金頓(pilkinton)公司下屬的德國鮑格拉斯工業公司(BGI),其生產的U型玻璃商標為Profilit®,在英國及愛爾蘭又曾以Reglet®注冊商標廣為知曉。國內現在也有廠家引進德國技術生產,國家建筑材料工業局也于2000年發布了《建筑用U型玻璃》(jc/t 867-2000)的建材行業標準。
什么是U型玻璃
U型玻璃(亦稱槽型玻璃)是用先壓延后成型的方法連續生產出來的,因其橫截面呈“U”型,故而得名。是一種新穎的建筑型材玻璃。U型玻璃品種很多,具有良好的透光而不透視的特性,保溫隔熱性能和隔聲性能優良,比普通平板玻璃的機械強度高,施工簡便,有獨特的建筑與裝飾效果,可節省大量輕金屬型材,用途廣泛。

按顏色分類:無色、噴涂各色、貼膜各色。常用無色。
按表面狀態分類:壓花紋、平滑、細花紋。常用壓花紋。
按強度分類:普通、鋼化、貼膜、加強膜及填充保溫層。
U型玻璃作為墻體材料可用于建筑內墻、外墻、隔斷等部位。外墻一般用于多層建筑,在建筑上有很多應用。

青島卷煙廠

湖南新邵廣信健身中心

寧波利時商務大廈
U型玻璃規格/組合安裝
U型玻璃可單層、雙層安裝,可以按造型及使用功能分別采取以下八種常規組合方式:

常用規格:

安裝工藝
·將鋁型材框料,用不銹鋼螺栓或鉚釘固定在建筑物上。將U型玻璃內面仔細擦洗干凈,再鑲入框架。
·將起穩定作用的緩沖塑料件,截成相應長度,放入固定的框架內。
·當U型玻璃安裝至最后一塊,洞口的寬度余量不能裝入整塊玻璃時,可將U型玻璃沿長度方向裁切以滿足剩余寬度。安裝時應將裁切過的U型玻璃先進入邊框,再按第5條要求安裝。
·安裝最后三塊U型玻璃時,應先將兩塊玻璃進入邊框,再裝第三塊玻璃封扣。
·調整U型玻璃之間的溫度伸縮間隙,尤其在年溫差較大的地域。
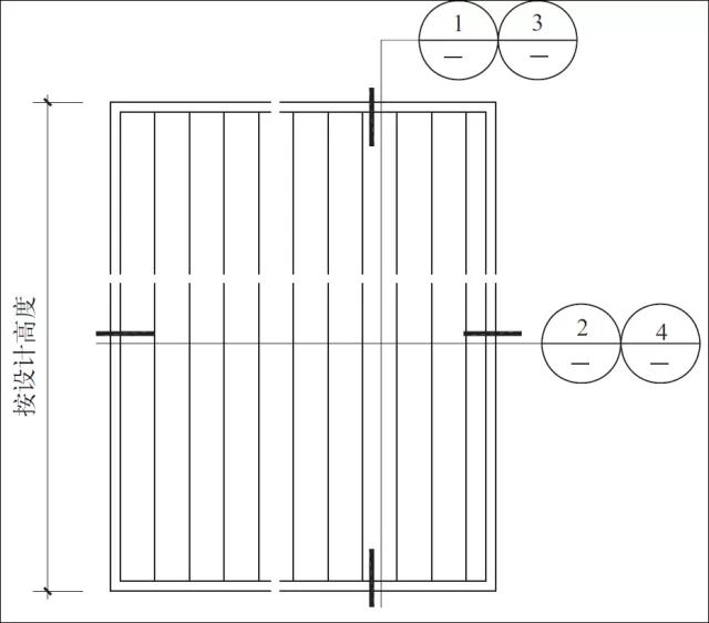
·U型玻璃高度不大于5m時,邊框垂直度的允許偏差為5mm;
·U型玻璃水平寬度大于2m時,橫向構件水平度的允許偏差為3mm;U型玻璃高度不大于6m時,構件跨向撓度的允許偏差小于8mm。
·清潔玻璃:一面墻體完工后,清潔表面遺留痕跡。
·在邊框與玻璃間的縫隙中塞入彈性墊條,墊條與玻璃和邊框接觸面不得少于12mm。
·在邊框與玻璃,玻璃與玻璃,邊框與建筑結構體的接縫中,填入玻璃膠類彈性密封材料(或硅酮膠密封)。
·邊框承受的荷載應直接傳給建筑物,U型玻璃墻體屬非承重墻體不可受力。
·安裝玻璃時,要將內表面擦拭干凈,安裝完畢后,再將外表面的污垢擦拭干凈。
U型玻璃豎向安裝外墻







相關案例

▲福建融僑悅府

▲成都龍湖天宸原著


▲紹興新城棠樾/DDON笛東


▲武漢金地北辰閱風華

▲華遠云和墅

▲聯發藏瓏大境


▲中糧天悅ONE MAJESTY


▲綠地香港巫家壩壹號


▲鄭州融信奧體世紀
U型玻璃結構使其產品強度高,即使安裝在高層建筑或大面積需采光的部位,也無需額外的水平或垂直支承物,具有多樣的安裝方式,采光性、隔音防噪、隔熱保溫性能顯著,已成為新型的綠色環保節能玻璃之一。
|